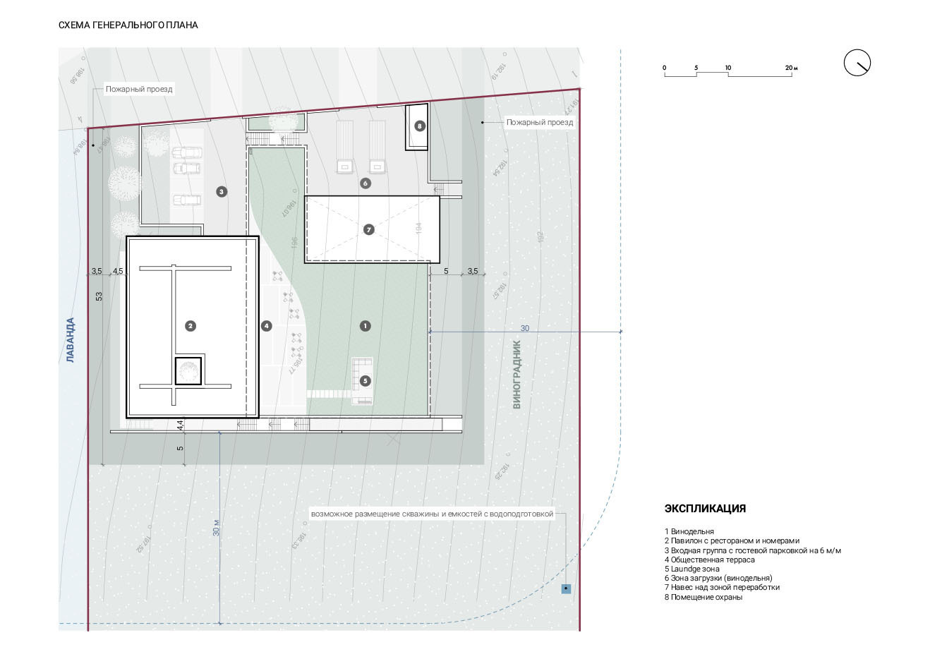
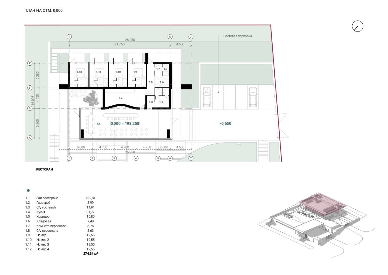
ПРОЕКТ ВИНОДЕЛЬНИ В с. ТУРГЕНЕВКА
Локация: с. Тургеневка, Бахчисарайский р-н, Республика Крым
Дата: 2025
Статус: проект
Площадь: 1 116 кв. м
Авторский коллектив: Чернов Юрий, Карине Авакян, Земляков Сергей
Совместно с АМ "РЕНОВАЦИЯ"
















